6 Seapoint Court, Baldoyle, Dublin 13
- €395,000
Details
Updated on January 21, 2026 at 12:48 pm-
Price €395,000
-
Property Size 54
-
Bedrooms 2
-
Bathroom 1
-
Property Type House
-
Property Status For Sale
-
BER B3
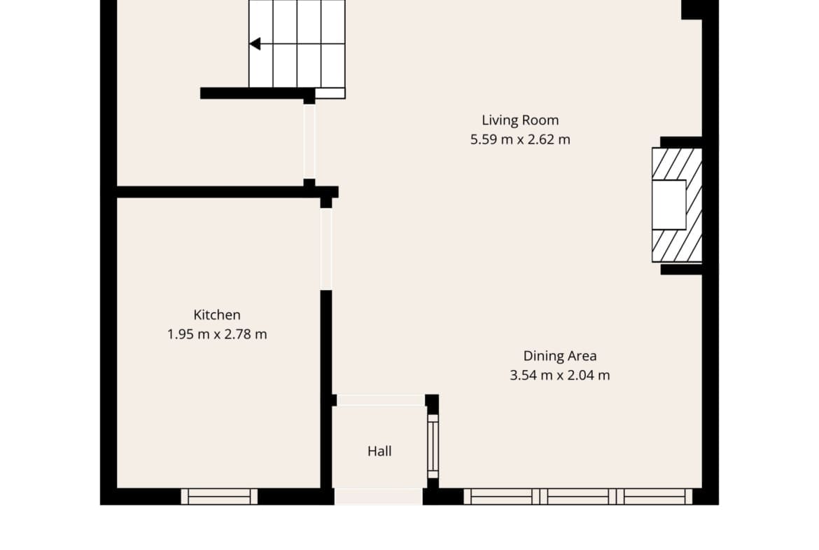
Description
Noel Kelly Auctioneers Ltd are delighted to present to the market this stunning two-bedroom, end of terrace house situated in this highly sought after development in Baldoyle within walking distance to the Dart. The spacious & bright accommodation is decorated tastefully throughout and comprises of an entrance hall, large lounge with stove fireplace, fully fitted kitchen, 2 double bedrooms and a large, family bathroom.
Address
Open on Google Maps-
Address: 6 Seapoint Court, Baldoyle, Dublin 13
-
Zip/Postal Code: D13 E7Y3
-
Area: Baldoyle

















