1 Saint Fintan’s Crescent, Sutton, Dublin 13
- €850,000
- €850,000
Details
Updated on October 23, 2025 at 3:04 pm-
Price €850,000
-
Bedrooms 4
-
Bathrooms 3
-
Property Type House
-
Property Status Sale Agreed
-
BER C2
360° Virtual Tour
Description
This semi-detached family home is offered fully modernised and renovated, featuring a sunny south-facing rear aspect and a convenient location within a short walk of local schools and the seafront.
The ground floor includes an extended porch leading to a spacious reception hall, a stylish kitchen dining room with glazed doors opening to a rear patio, a guest WC, and a bright living room. Upstairs, there are 4 generous double bedrooms and a family bathroom. The attic has been converted to provide two additional rooms and a guest WC, offering ample additional storage and usable space. Recent upgrades encompass a redesigned layout downstairs, a high-spec fitted kitchen fully equipped with integrated appliances, a new heating system, double glazed windows throughout, rewiring, and upgraded bathrooms. Gross floor area on ground floor and 1st floor is approximately 144sqm and there is an additional 30sqm termed storage at attic level (total 174sqm).
Outside, there is parking for 2 cars at the front, along with a gated side entrance leading to a sunny south-facing rear garden.
Saint Fintan’s is a mature and highly sought-after neighborhood conveniently situated off Strand Road. This convenient location is within walking distance of excellent schools and all amenities at Sutton Cross. Nearby are numerous sporting facilities including sailing, hockey, rugby, soccer, tennis, GAA and gyms. Excellent transport links are available with bus and DART services providing easy access to the city center.
Contact JB Kelly now to schedule a viewing appointment at 01-8393400.
.
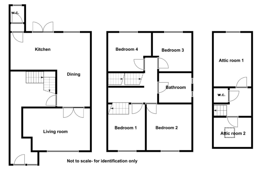
ACCOMMODATION
Ground floor
Entrance Porch
2.20 x 0.95m
Extended to the front, engineered floor through to…
Hall
(4.20 x 0.90m) + (2.85 x 3.65m)
Engineered floors, under stair storage
Kitchen / Dining Room
(2.85 x 3.00m) + (3.20 x 5.60m)
Extensive storage with a range of floor and wall-mounted kitchen cupboards and centre island unit. White stone worktops and splashbacks.
Induction hob with extractor unit over, twin ovens, fridge freezer, dish washer and washer drier.
Glazed doors to south facing rear garden and patio area.
Guest W.C.
1.90 x 1.10m
With storage lobby area, WC & WHB, tiled floors.
Living Room
3.95 x 5.80m
Double doors from kitchen dining room. Fireplace with solid fuel stove insert. Full length feature window overlooking front garden, engineered floors.
First floor
Landing
2.45 x 4.05m
Fixed stairs to attic conversion, shelved hotpress and storage closet.
Bedroom 1
3.65 x 3.00m
Double bedroom with laminate floors and sliding wardrobe
Bedroom 2
4.65 x 4.40m
Double bedroom with laminate floors and extensive wardrobe storage
Bathroom
2.40 x 2.65m
WC, WHB, wide basin cubicle shower and separate bath. Tiled walls and floors with heated chrome towel rail.
Bedroom 3
3.15 x 3.50m
Located to the rear with built-in wardrobe. Laminate floors.
Bedroom 4
3.15 x 3.50m
Located to the rear with built in wardrobe and study desk. Laminate floors.
Attic Conversion
Attic Room 1
3.05 x 3.40m
Spacious room with Velux window over, access to eaves storage.
Guest WC
1.10 x 1.25m
WC & WHB, mosaic tiled floor.
Attic Room 2
3.05 x 4.40m
Overlooking rear garden with sea views towards Sutton Creek. Spacious room with access to eaves storage.
.
FLOOR PLAN

.
FEATURES
- Floor area 144sqm plus an additional 30sqm at attic conversion level (planning termed as storage)
- Sunny south facing rear aspect
- Recently renovated
- Gas fired central heating
- Double glazed windows throughout
- Attic converted to 2 additional rooms
- Walk distance to seafront and local schools
- Off street parking via private driveway
- Gated side entrance from front to rear
.
BUILDING ENERGY RATING

BER# 117568808
179.68 kWh/m2/yr
Address
Open on Google Maps-
Address: 1 Saint Fintan's Crescent, Sutton, D13
-
Zip/Postal Code: D13W5W4
-
Area: Sutton
















